Przegląd
Opis nieruchomości
0% prowizji!
0% PCC!
Zakup od dewelopera
Oddanie w maju/czerwcu w 2026 roku
Mieszkania na sprzedaż | Warszawa Rembertów | przy lesie
Na sprzedaż mieszkania położone na nowym, kameralnym osiedlu w warszawskim Rembertowie, tuż obok lasu. To idealne miejsce dla osób poszukujących ciszy, kontaktu z naturą i jednocześnie wygodnego dostępu do infrastruktury miejskiej.
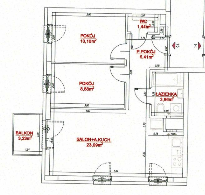
Szczegóły mieszkania:
Powierzchnia: 53,78 m²
Cena: 639982 zł
Piętro: 1
Liczba pokoi: 3
Układ pomieszczeń:
salon z aneksem kuchennym: 23,09 m²
2 sypialnie: 10,10 m² i 8,88 m²
łazienka: 3,86 m²
WC: 1,44 m²
przedpokój: 6,41 m²
balkon: 3,23 m²
Stan deweloperski.
Atuty osiedla:
Osiedle zaprojektowane zostało z myślą o komforcie mieszkańców. Teren jest ogrodzony i monitorowany, co zapewnia poczucie bezpieczeństwa i prywatności. Na najmłodszych czekają place zabaw, a dla zmotoryzowanych przygotowano zarówno naziemne miejsca postojowe (27 000 zł), jak i podziemne garaże (39 000 zł). W budynkach są windy.
Świetna lokalizacja:
- spokojna, zielona okolica - tuż przy Lesie Rembertowskim
- przystanek autobusowy tuż obok osiedla
- szybki dojazd do centrum Warszawy (autobus + linia metra M2)
- w pobliżu Zalew Bardowskiego - doskonałe miejsce na spacery i rekreację
- w okolicy liczne sklepy, szkoły, przedszkola i punkty usługowe
Dostępność lokali:
Mieszkania dostępne w różnych układach i metrażach - dopasowane zarówno dla singli, par, jak i rodzin z dziećmi. Lokale oddawane w stanie deweloperskim, gotowe do własnej aranżacji.
Termin oddania:
II kwartał 2026 roku.
Zapraszamy na prezentację!
Tel. +48 883 660 704
Grzegorz Kościelnicki
Great House Biuro Nieruchomości
0% PCC!
Zakup od dewelopera
Oddanie w maju/czerwcu w 2026 roku
Mieszkania na sprzedaż | Warszawa Rembertów | przy lesie
Na sprzedaż mieszkania położone na nowym, kameralnym osiedlu w warszawskim Rembertowie, tuż obok lasu. To idealne miejsce dla osób poszukujących ciszy, kontaktu z naturą i jednocześnie wygodnego dostępu do infrastruktury miejskiej.
Szczegóły mieszkania:
Powierzchnia: 53,78 m²
Cena: 639982 zł
Piętro: 1
Liczba pokoi: 3
Układ pomieszczeń:
salon z aneksem kuchennym: 23,09 m²
2 sypialnie: 10,10 m² i 8,88 m²
łazienka: 3,86 m²
WC: 1,44 m²
przedpokój: 6,41 m²
balkon: 3,23 m²
Stan deweloperski.
Atuty osiedla:
Osiedle zaprojektowane zostało z myślą o komforcie mieszkańców. Teren jest ogrodzony i monitorowany, co zapewnia poczucie bezpieczeństwa i prywatności. Na najmłodszych czekają place zabaw, a dla zmotoryzowanych przygotowano zarówno naziemne miejsca postojowe (27 000 zł), jak i podziemne garaże (39 000 zł). W budynkach są windy.
Świetna lokalizacja:
- spokojna, zielona okolica - tuż przy Lesie Rembertowskim
- przystanek autobusowy tuż obok osiedla
- szybki dojazd do centrum Warszawy (autobus + linia metra M2)
- w pobliżu Zalew Bardowskiego - doskonałe miejsce na spacery i rekreację
- w okolicy liczne sklepy, szkoły, przedszkola i punkty usługowe
Dostępność lokali:
Mieszkania dostępne w różnych układach i metrażach - dopasowane zarówno dla singli, par, jak i rodzin z dziećmi. Lokale oddawane w stanie deweloperskim, gotowe do własnej aranżacji.
Termin oddania:
II kwartał 2026 roku.
Zapraszamy na prezentację!
Tel. +48 883 660 704
Grzegorz Kościelnicki
Great House Biuro Nieruchomości
Niniejsze ogłoszenie jest wyłącznie informacją handlową i nie stanowi oferty w myśl art. 66, paragraf 1. Kodeksu Cywilnego. Sprzedający nie odpowiada za ewentualne błędy lub nieaktualność ogłoszenia.
Szczegóły nieruchomości
- IDGH505135
- Cena639 982 PLN
- Powierzchnia53.78 m²
- Pokoje3
- Piętro1
- Rok budowy2025
- TypMieszkanie
- Transakcjasprzedaż
- Rynekpierwotny
- Cena za m²11900.00 PLN
Cechy nieruchomości
Lokalizacja
- AdresMeblowa
- MiastoWarszawa